(EU) č. 842/2011Prováděcí nařízení Komise (EU) č. 842/2011 ze dne 19. srpna 2011 , kterým se stanoví standardní formuláře pro zveřejňování oznámení v oblasti zadávání veřejných zakázek a kterým se zrušuje nařízení (ES) č. 1564/2005 Text s významem pro EHP

Publikováno: Úř. věst. L 222, 27.8.2011, s. 1-187 Druh předpisu: Prováděcí nařízení
Přijato: 19. srpna 2011 Autor předpisu: Evropská komise
Platnost od: 16. září 2011 Nabývá účinnosti: 16. září 2011
Platnost předpisu: Zrušen předpisem (EU) 2015/1986 Pozbývá platnosti: 18. dubna 2016
Původní znění předpisu

Text předpisu s celou hlavičkou je dostupný pouze pro registrované uživatele.



PROVÁDĚCÍ NAŘÍZENÍ KOMISE (EU) č. 842/2011

ze dne 19. srpna 2011,

kterým se stanoví standardní formuláře pro zveřejňování oznámení v oblasti zadávání veřejných zakázek a kterým se zrušuje nařízení (ES) č. 1564/2005

(Text s významem pro EHP)

EVROPSKÁ KOMISE,

s ohledem na Smlouvu o fungování Evropské unie,

s ohledem na směrnici Rady 89/665/EHS ze dne 21. prosince 1989 o koordinaci právních a správních předpisů týkajících se přezkumného řízení při zadávání veřejných zakázek na dodávky a stavební práce (1), a zejména na článek 3a uvedené směrnice,

s ohledem na směrnici Rady 92/13/EHS ze dne 25. února 1992 o koordinaci právních a správních předpisů týkajících se uplatňování pravidel Společenství pro postupy při zadávání zakázek subjekty působícími v odvětví vodního hospodářství, energetiky, dopravy a telekomunikací (2), a zejména na článek 3a uvedené směrnice,

s ohledem na směrnici Evropského parlamentu a Rady 2004/17/ES ze dne 31. března 2004 o koordinaci postupů při zadávání zakázek subjekty působícími v odvětví vodního hospodářství, energetiky, dopravy a poštovních služeb (3), a zejména na čl. 44 odst. 1 a čl. 63 odst. 1 uvedené směrnice,

s ohledem na směrnici Evropského parlamentu a Rady 2004/18/ES ze dne 31. března 2004 o koordinaci postupů při zadávání veřejných zakázek na stavební práce, dodávky a služby (4), a zejména na čl. 36 odst. 1, čl. 58. odst. 2, čl. 64 odst. 2 a čl. 70 odst. 1 uvedené směrnice,

s ohledem na směrnici Evropského parlamentu a Rady 2009/81/ES ze dne 13. července 2009 o koordinaci postupů při zadávání některých zakázek na stavební práce, dodávky a služby zadavateli v oblasti obrany a bezpečnosti a o změně směrnic 2004/17/ES a 2004/18/ES (5), a zejména na čl. 32 odst. 1, čl. 52 odst. 2 a článek 64 uvedené směrnice,

po konzultaci s Poradním výborem pro veřejné zakázky,

vzhledem k těmto důvodům:

(1)

Podle směrnic 89/665/EHS a 2004/18/ES musí být veřejné zakázky na dodávky, stavební práce a služby zveřejněny v Úředním věstníku Evropské Unie. Oznámení určená k tomuto zveřejnění by měla obsahovat informace stanovené v uvedených směrnicích.

(2)

Podle směrnic 92/13/EHS a 2004/17/ES musí být zadání veřejných zakázek v odvětví vodního hospodářství, energetiky, dopravy a telekomunikací zveřejněno v Úředním věstníku Evropské Unie. Oznámení určená k tomuto zveřejnění by měla obsahovat informace stanovené v uvedených směrnicích.

(3)

Podle směrnice 2009/81/ES musí být některé zakázky na stavební práce, dodávky a služby zadávané v oblasti obrany a bezpečnosti zveřejněny v Úředním věstníku Evropské Unie. Oznámení určená k tomuto zveřejnění by měla obsahovat informace stanovené v uvedených směrnicích.

(4)

Nařízení Komise (ES) č. 1564/2005 ze dne 7. září 2005, kterým se stanoví standardní formuláře pro zveřejňování oznámení v rámci postupů zadávání veřejných zakázek (6), stanoví standardní formuláře uvedené ve směrnicích 2004/17/ES a 2004/18/ES a ve směrnicích 89/665/EHS a 92/13/EHS.

(5)

Pro dosažení souladu se směrnicí 2009/81/ES a zajištění plné účinnosti směrnic 89/665/EHS, 92/13/EHS, 2004/17/ES a 2004/18/ES je nutné standardní formuláře uvedené v příloze nařízení (ES) č. 1564/2005 upravit a doplnit. Je třeba rovněž aktualizovat některé prvky standardních formulářů, aby bylo možné zohlednit technický pokrok. Vzhledem k počtu a rozsahu nutných úprav by nařízení (ES) č. 1564/2005 mělo být nahrazeno.

(6)

Opatření stanovená tímto nařízením jsou v souladu se stanoviskem výboru,

PŘIJALA TOTO NAŘÍZENÍ:

Článek 1

Ke zveřejnění oznámení uvedených v článcích 41 až 44 a článku 63 směrnice 2004/17/ES v Úředním věstníku Evropské unie použijí zadavatelé standardní formuláře uvedené v přílohách IV až IX, XII a XIII tohoto nařízení.

Článek 2

Ke zveřejnění oznámení uvedených v článcích 35, 36, 58, 64, 69 a 70 směrnice 2004/18/ES v Úředním věstníku Evropské unie použijí zadavatelé standardní formuláře uvedené v přílohách I, II, III a VIII až XIII tohoto nařízení.

Článek 3

Ke zveřejnění oznámení uvedeného v článku 3a směrnic 89/665/EHS a 92/13/EHS v Úředním věstníku Evropské unie použijí zadavatelé standardní formulář uvedený v příloze XIV tohoto nařízení.

Článek 4

Ke zveřejnění oznámení uvedených v článcích 30, 32, 52 a 64 směrnice 2009/81/ES v Úředním věstníku Evropské unie použijí zadavatelé standardní formuláře uvedené v přílohách XV až XVIII tohoto nařízení.

Článek 5

Nařízení (ES) č. 1564/2005 se zrušuje.

Článek 6

Toto nařízení vstupuje v platnost dvacátým dnem po vyhlášení v Úředním věstníku Evropské unie.

Toto nařízení je závazné v celém rozsahu a přímo použitelné ve všech členských státech.

V Bruselu dne 19. srpna 2011.

Za Komisi

José Manuel BARROSO

předseda


(1)  Úř. věst. L 395, 30.12.1989, s. 33.

(2)  Úř. věst. L 76, 23.3.1992, s. 14.

(3)  Úř. věst. L 134, 30.4.2004, s. 1.

(4)  Úř. věst. L 134, 30.4.2004, s. 114.

(5)  Úř. věst. L 216, 20.8.2009, s. 76.

(6)  Úř. věst. L 257, 1.10.2005, s. 1.


Seznam příloh

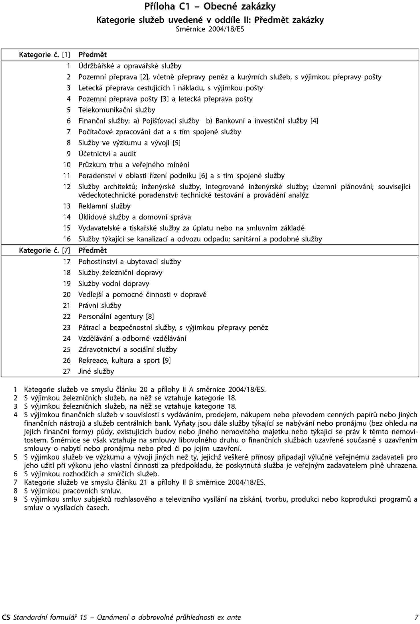
Příloha I:

:

standardní formulář 1

:

„Oznámení předběžných informací“

Příloha II:

:

standardní formulář 2

:

„Oznámení o zakázce“

Příloha III:

:

standardní formulář 3

:

„Oznámení o zadání zakázky“

Příloha IV:

:

standardní formulář 4

:

„Pravidelné předběžné oznámení – veřejné služby“

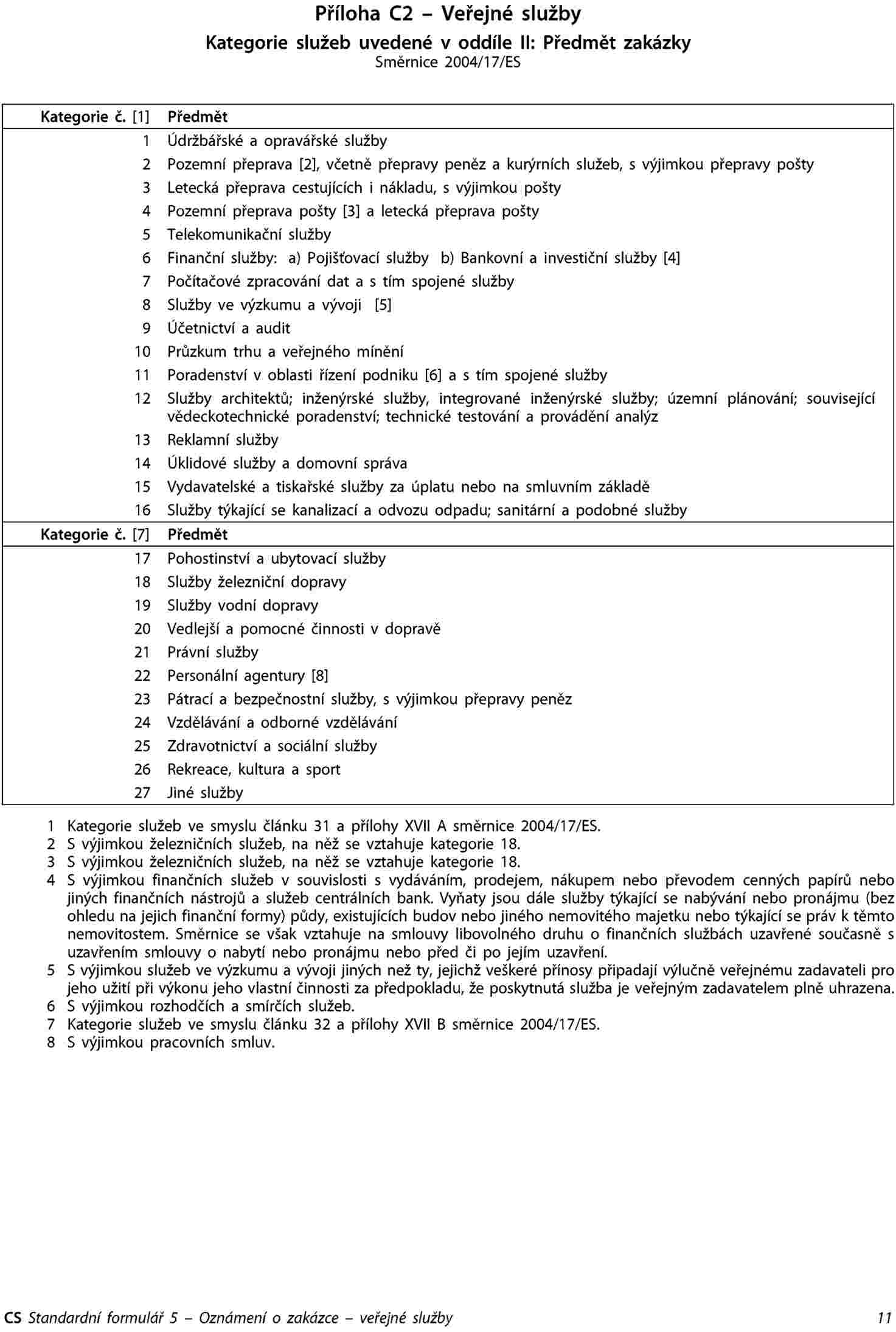
Příloha V:

:

standardní formulář 5

:

„Oznámení o zakázce – veřejné služby“

Příloha VI:

:

standardní formulář 6

:

„Oznámení o zadání zakázky – veřejné služby“

Příloha VII:

:

standardní formulář 7

:

„Systém kvalifikace – veřejné služby“

Příloha VIII:

:

standardní formulář 8

:

„Oznámení na profilu kupujícího“

Příloha IX:

:

standardní formulář 9

:

„Zjednodušené oznámení o zakázce v rámci dynamického nákupního systému“

Příloha X:

:

standardní formulář 10

:

„Koncese na stavební práce“

Příloha XI:

:

standardní formulář 11

:

„Oznámení o zakázce – zakázka zadávaná koncesionářem, který není veřejným zadavatelem“

Příloha XII:

:

standardní formulář 12

:

„Oznámení o veřejné soutěži na určitý výkon“

Příloha XIII:

:

standardní formulář 13

:

„Výsledky veřejné soutěže na určitý výkon“

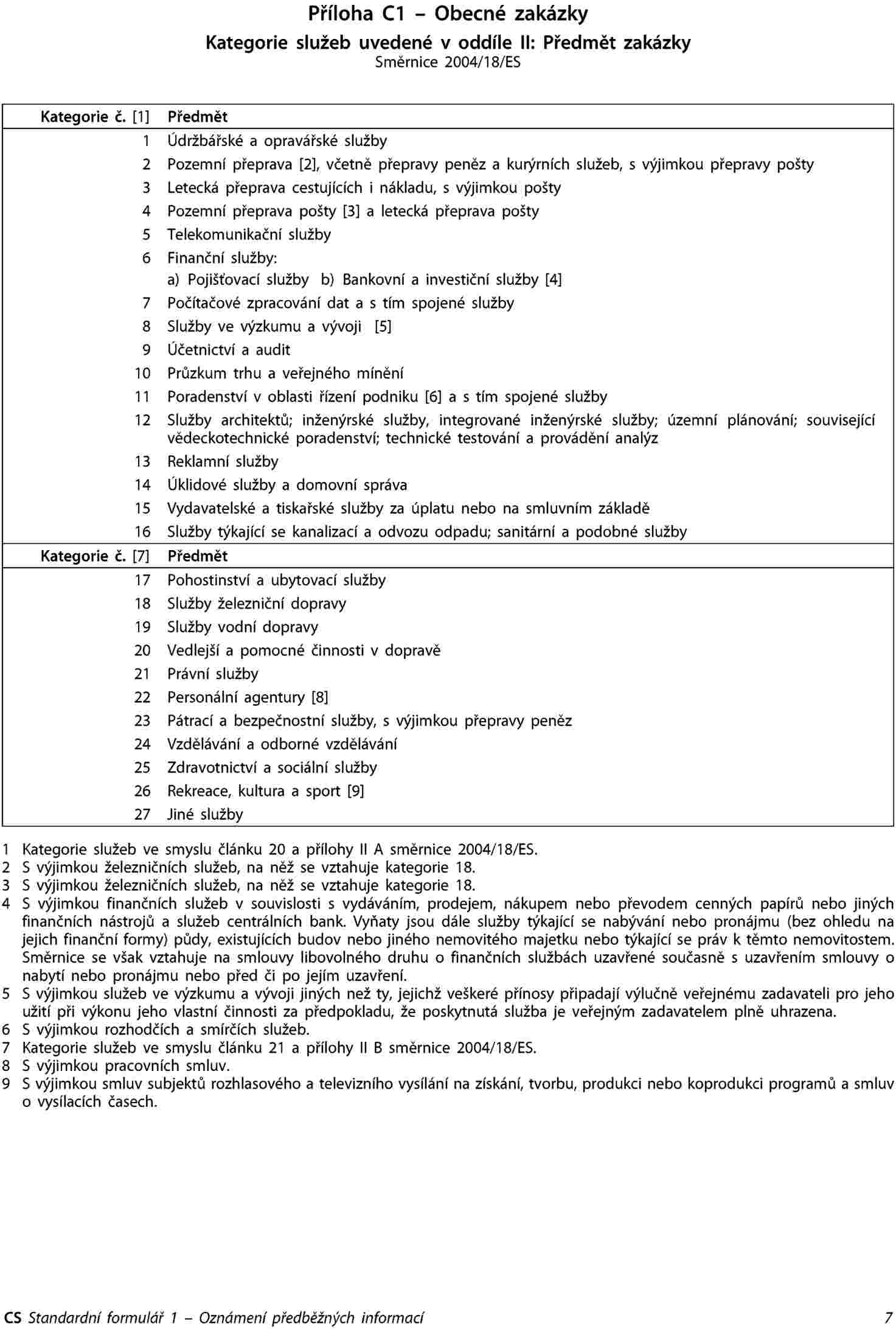
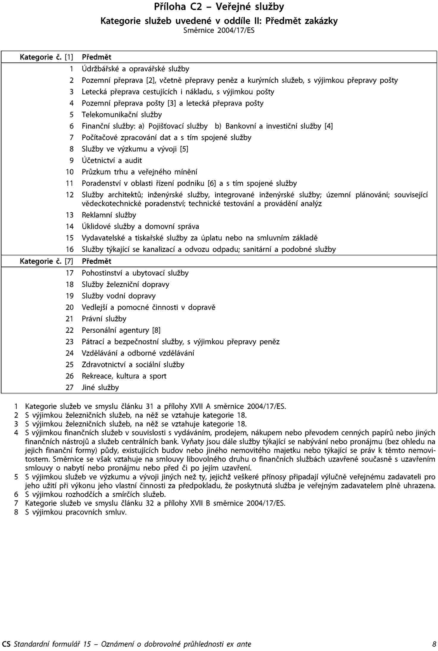
Příloha XIV:

:

standardní formulář 15

:

„Oznámení o dobrovolné průhlednosti ex ante

Příloha XV:

:

standardní formulář 16

:

„Oznámení předběžných informací – obrana a bezpečnost“

Příloha XVI:

:

standardní formulář 17

:

„Oznámení o zakázce – obrana a bezpečnost“

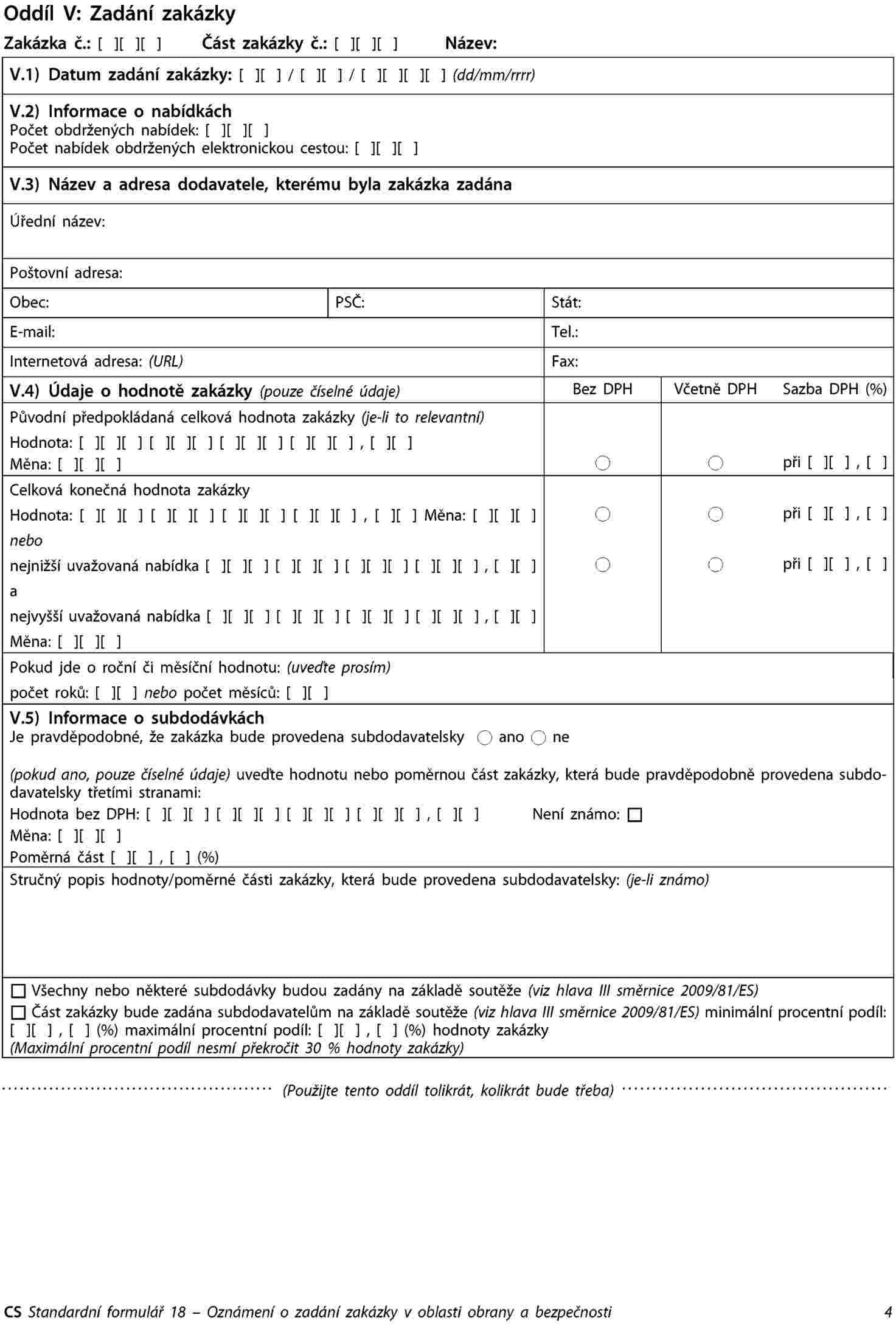
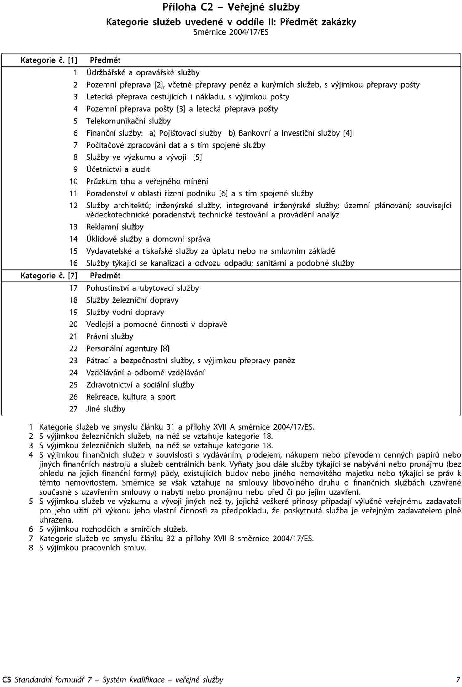
Příloha XVII:

:

standardní formulář 18

:

„Oznámení o zadání zakázky – obrana a bezpečnost“

Příloha XVIII:

:

standardní formulář 19

:

„Oznámení o subdodávce – obrana a bezpečnost“

PŘÍLOHA I

Image

Image

Image

Image

Image

Image

Image

PŘÍLOHA II

Image

Image

Image

Image

Image

Image

Image

Image

Image

Image

Image

PŘÍLOHA III

Image

Image

Image

Image

Image

Image

Image

Image

PŘÍLOHA IV

Image

Image

Image

Image

Image

Image

Image

Image

Image

Image

Image

Image

PŘÍLOHA V

Image

Image

Image

Image

Image

Image

Image

Image

Image

Image

Image

PŘÍLOHA VI

Image

Image

Image

Image

Image

Image

Image

Image

Image

PŘÍLOHA VII

Image

Image

Image

Image

Image

Image

Image

PŘÍLOHA VIII

Image

Image

Image

PŘÍLOHA IX

Image

Image

Image

Image

PŘÍLOHA X

Image

Image

Image

Image

Image

PŘÍLOHA XI

Image

Image

Image

Image

Image

PŘÍLOHA XII

Image

Image

Image

Image

Image

Image

PŘÍLOHA XIII

Image

Image

Image

Image

Image

PŘÍLOHA XIV

Image

Image

Image

Image

Image

Image

Image

Image

Image

Image

Image

Image

PŘÍLOHA XV

Image

Image

Image

Image

Image

Image

PŘÍLOHA XVI

Image

Image

Image

Image

Image

Image

Image

Image

Image

Image

Image

Image

PŘÍLOHA XVII

Image

Image

Image

Image

Image

Image

Image

Image

PŘÍLOHA XVIII

Image

Image

Image

Image

Image

Image

Image


© Evropská unie, https://eur-lex.europa.eu/ , 1998-2022
Zavřít
MENU